DLA RODZINY | PIERWOTNIE 4 POKOJE | GWIAŹDZISTA

Mieszkanie na sprzedaż
1 130 000,00 PLN , Pow. 79,70 m2
Drukuj ofertę
Drukuj ofertę
Typ nieruchomości:
Mieszkanie
Powierzchnia:
79,70 m2
Typ transakcji:
sprzedaż
Liczba pokoi:
4
Lokalizacja:
Warszawa Żoliborz , Gwiaździsta
Rok budowy:
1981
Piętro:
12 na 12
Numer oferty:
PI515721
Cena za m2:
14 178,17 PLN

Na sprzedaż 4-pokojowe mieszkanie - ul. Gwiaździsta 13, Żoliborz, Warszawa



Na sprzedaż funkcjonalne mieszkanie o powierzchni 79,70 m², położone w budynku przy ul. Gwiaździstej 13 na warszawskim Żoliborzu.


Najważniejsze informacje:
Powierzchnia: 79,70 m²
Piętro: 12 (oczywiście z windą)
Blok z 1981 r.
Balkon francuski (wyjście z salonu)
Mieszkanie dwustronne - bardzo dobrze doświetlone
Spółdzielcze-własnościowe prawo do lokalu z księga wieczystą (możliwy zakup na kredyt)


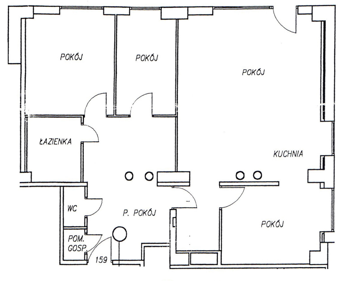
Mieszkanie jest aktualnie podzielone na pokoje (i wynajmowane). Pierwotny plan lokalu
(4 pokoje) załączam w galerii. Zdjęcia przedstawiają aktualny stan (po podzieleniu na pokoje).


Standard wykończenia:
Mieszkanie było remontowane 10 lat temu oraz odświeżone w 2025 roku. Od lat jest stale wynajmowane. 

Lokalizacja:
Nieruchomość położona jest w zielonej i spokojnej części Warszawy, przy ul. Gwiaździstej. Okolica ceniona jest za bliskość terenów rekreacyjnych oraz dobrą komunikację z centrum miasta.


W pobliżu znajdują się:
-tereny spacerowe i rekreacyjne nad Wisłą
-sklepy, punkty usługowe i gastronomiczne
-przystanki autobusowe i tramwajowe - szybki dojazd do centrum Warszawy

Komunikacja miejska:
- tramwaj nr 15 dojeżdża do centrum Warszawy w 18 min 
- 3 przystanki tramwajem do Placu Wilsona (METRO)



To doskonałe miejsce dla osób ceniących ciszę, zieleń i komfort życia, a jednocześnie dobrą komunikację z resztą miasta.

Zapraszam do kontaktu i umówienia prezentacji.



Informacje zawarte w niniejszym ogłoszeniu nie stanowią oferty handlowej w rozumieniu art. 66 §1 Kodeksu Cywilnego i mają charakter informacyjny.

Nieprawidłowy adres E-mail