Kamienica | 2pok. | winda | Centrum |

Mieszkanie na sprzedaż
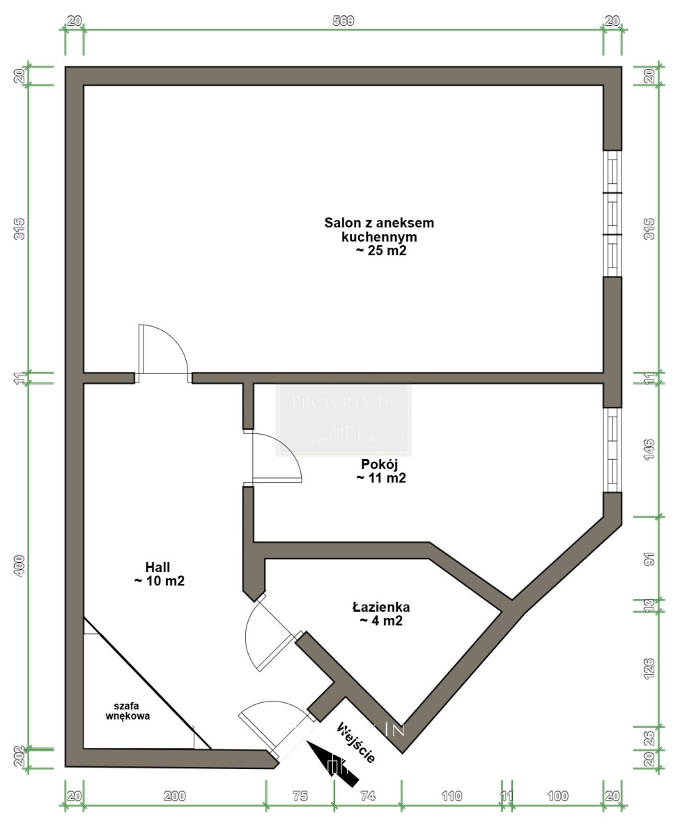
1 470 000,00 PLN , Pow. 49,28 m2
Typ nieruchomości:
Mieszkanie
Powierzchnia:
49,28 m2
Typ transakcji:
sprzedaż
Liczba pokoi:
2
Lokalizacja:
Warszawa Śródmieście , Poznańska
Rok budowy:
1924
Piętro:
3 na 5
Numer oferty:
PI649269
Cena za m2:
29 829,55 PLN

Na sprzedaż wyjątkowe mieszkanie w przedwojennej kamienicy przy prestiżowej ul. Poznańskiej w sercu Warszawy. Lokal znajduje się od strony wewnętrznego patio, dzięki czemu oferuje ciszę i prywatność - rzadko spotykane w ścisłym centrum miasta. To idealne połączenie klimatu historycznej zabudowy z komfortem spokojnego, miejskiego życia.

Przed prezentacją zapoznaj się ze spacerem wirtualnym po mieszkaniu.



Warszawa, Śródmieście, ul. Poznańska
metraż: 49,28 mkw
piętro: 3 z 5 
pełna własność, możliwość posiłkowania się kredytem
cena: 1 470 000 zł - do negocjacji
czynsz administracyjny: 800 zł




Informację o budynku
Kamienica przy ul. Poznańskiej 11 została wybudowana w 1924 roku i stanowi przykład klasycznej, przedwojennej zabudowy śródmiejskiej Warszawy. Budynek zachowuje charakterystyczne dla tego okresu proporcje oraz solidną konstrukcję, typową dla warszawskich kamienic z początku XX wieku. Nad bezpieczeństwem mieszkańców czuwa monitoring. Budynek w dobrym stanie technicznym.

Nieruchomość składa się z:
- przedpokoju
- salonu z aneksem kuchennym
- sypialni
- łazienki


 


Najważniejsze informacje dotyczące nieruchomości:
- ogromnym atutem jest usytuowanie mieszkania od strony wewnętrznego patio - gwarancja ciszy mimo ścisłego centrum miasta.
winda (rzadkość w kamienicach z tego okresu)
przedwojenne, solidne mury
- winda
- patio
- brama na kod
- monitoring
- na podłodze parkiet
- wysokie sufity
- duża szafa w przedpokoju 
- ekspozycja południowo wschodnia
- jednostronne 


 


Opis okolicy i komunikacji miejskiej
Ul. Poznańska to jedna z najbardziej rozpoznawalnych i klimatycznych ulic Śródmieścia w Warszawie. Lokalizacja łączy prestiż ścisłego centrum z kameralnym charakterem zabytkowej zabudowy. W bezpośrednim sąsiedztwie znajdują się liczne restauracje, modne kawiarnie, sklepy, punkty usługowe oraz miejsca spotkań - wszystko w zasięgu kilku minut spacerem.

Zaledwie kilka minut dzieli nieruchomość od kluczowych punktów miasta, takich jak Pałac Kultury i Nauki, Hala Koszyki czy Dworzec Centralny. W okolicy znajdują się również tereny zielone i przestrzenie rekreacyjne sprzyjające aktywnemu trybowi życia.

Pod względem komunikacji jest to jedna z najlepiej skomunikowanych części miasta. W pobliżu znajdują się stacje metra Centrum oraz Politechnika, a także liczne linie tramwajowe i autobusowe zapewniające szybki dojazd do każdej dzielnicy Warszawy. Bliskość głównych arterii miejskich pozwala również na sprawne przemieszczanie się samochodem.
To lokalizacja idealna zarówno do życia, jak i pod inwestycję - centralny adres, który zawsze będzie pożądany na rynku.


Więcej informacji udzielę telefonicznie.




Informacje zawarte w niniejszej ofercie nie są prawnie wiążące i nie stanowią oferty handlowej, w tym w rozumieniu art.. 66 par 1 kodeksu cywilnego.
Nieprawidłowy adres E-mail