Praga | Pierwotnie 3 pokoje | Księga wieczysta

Mieszkanie na sprzedaż
712 500,00 PLN , Pow. 57 m2
Drukuj ofertę
Drukuj ofertę
Typ nieruchomości:
Mieszkanie
Powierzchnia:
57 m2
Typ transakcji:
sprzedaż
Liczba pokoi:
3
Lokalizacja:
Warszawa Praga-Południe , Opinogórska
Rok budowy:
1971
Piętro:
2 na 5
Numer oferty:
PI698187
Cena za m2:
12 500,00 PLN

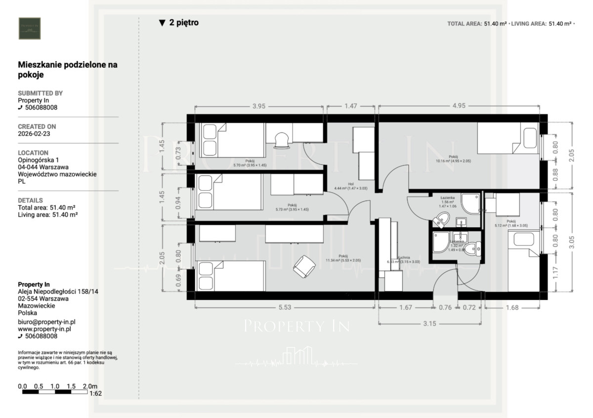
Na sprzedaż  mieszkanie zlokalizowane na Pradze-Południe (ul. Opinogórska 1)


Najważniejsze informacje:
Powierzchnia: 57 m2
Piętro: 2 z 5 (winda)
ul. Opinogórska 1 (Przyczółek Grochowski)


Spółdzielcze-własnościowe prawo do lokalu z Księgą Wieczystą (możliwość zakupu na kredyt)


Mieszkanie aktualnie podzielone na pokoje (w najmie) 
Istnieje możliwość uzgodnienia zakupu po wypowiedzeniu umów najmu (jeśli Nabywca chciałby prywatnie korzystać z lokalu).


Pierwotny rozkład pomieszczeń:
- 3 pokoje
- oddzielna kuchnia 
- łazienka i osobne WC (lub jedna duża łazienka)
- przedpokój


Mieszkanie zostało wyremontowane i podzielone na pokoje 9 lat temu. Od tamtego momentu jest stale wynajmowane (umowy najmu na pokoje).

W prosty sposób można przywrócić pierwotny rozkład lokalu i stworzyć funkcjonalny lokal dla pary lub rodziny.


Lokalizacja:
W bezpośrednim sąsiedztwie znajdują się liczne sklepy, punkty usługowe, szkoły, przedszkola oraz przychodnie, co zapewnia komfort codziennego funkcjonowania. W kilka minut można dotrzeć do terenów rekreacyjnych i zielonych, idealnych na spacery czy aktywny wypoczynek. Park Znicza oraz okolice Jeziorka Gocławskiego to popularne miejsca relaksu dla mieszkańców.


W pobliżu:
-liczne sklepy, punkty usługowe i gastronomiczne
-szkoły i przedszkola
-przystanki autobusowe i tramwajowe w zasięgu kilku minut spacerem
-szybki dojazd do centrum Warszawy

Dzięki bliskości głównych arterii komunikacyjnych tej części miasta, dojazd do ścisłego centrum zajmuje około 20-25 minut.

Okolica jest świetnie skomunikowana - to doskonała propozycja dla osób ceniących bliskość wszystkich usług i doskonały dojazd do centrum miasta.


Zapraszam do kontaktu i umówienia prezentacji. 


Informacje zawarte w niniejszym ogłoszeniu nie stanowią oferty handlowej w rozumieniu art. 66 §1 Kodeksu Cywilnego i mają charakter informacyjny.

Nieprawidłowy adres E-mail