|2 oddzielne pok| wysokość 2,75 m| piwnica 6 m2|

Mieszkanie na sprzedaż
660 000,00 PLN , Pow. 50 m2
Drukuj ofertę
Drukuj ofertę
Typ nieruchomości:
Mieszkanie
Powierzchnia:
50 m2
Typ transakcji:
sprzedaż
Liczba pokoi:
2
Lokalizacja:
Warszawa Praga-Południe , Lubiniecka
Rok budowy:
1960
Piętro:
1 na 2
Numer oferty:
PI159295
Cena za m2:
13 200,00 PLN
| 2 oddzielne pokoje | wysokość 2,75 m | piwnica 6 m2 |


adres: ul. Lubiniecka

metraż: 50 m2

piętro: 1/2

pełna własność, można posiłkować się kredytem!!

cena: 660 000 zł

czynsz administracyjny: ok. 900 zł

Zdjęcia w ogłoszeniu kuchni, przedpokoju, łazienki oraz salonu, są jedynie poglądową wizualizacją.


Informację o budynku:
Mieszkanie znajduje się na 1. piętrze w budynku z 1960 roku (bez windy). Lokal jest dwustronny, co zapewnia dobre doświetlenie pomieszczeń oraz dostęp do naturalnego światła przez cały dzień. Wysokość sufitów wynosząca 2,75 m dodatkowo potęguje poczucie przestrzeni i komfortu.

Dużym atutem nieruchomości jest funkcjonalny układ pomieszczeń, który daje szerokie możliwości aranżacyjne. Obecnie mieszkanie składa się z dwóch oddzielnych pokoi oraz kuchni z oknem. Do mieszkania przynależy również przestronna piwnica o powierzchni ponad 6 m², stanowiąca dodatkowe miejsce do przechowywania.


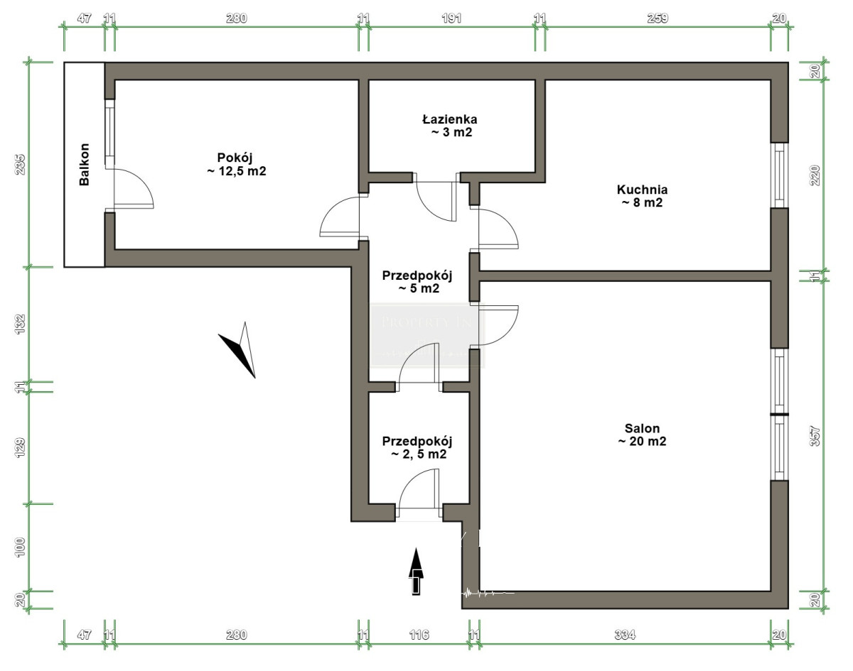
Nieruchomość składa się z:
- przedpokoju 1 ~ 2,5 m2
- przedpokoju 2 ~ 5 m2 
- salonu ~ 20 m2 
- kuchni ~ 8 m2
- łazienki ~ 3 m2
- pokoju ~ 12,5 m2 

nie wliczone w metraż mieszkania: balkon ~ 2,5 m2 + piwnica ~ 6 m2


Najważniejsze informację dotyczące mieszkania:
- dobrze doświetlone
- okna PCV
- balkon
- wysokość pomieszczeń 2,75 m
- duża możliwość aranżacji 
- 2 stronne 


Opis okolicy:
W pobliżu pełna infrastruktura miejska: sklepy, przedszkola, żłobki, restaurację, piekarnia, przychodnie, apteki, kluby fitness, place zabaw, banki, galerie handlowe.

550m - Centrum Handlowe Szembeka
200m - Plac Szembeka

Opis komunikacji miejskiej:
Lokalizacja dobrze skomunikowana ze wszystkimi dzielnicami Warszawy.

- 350m od budynku znajduje się przystanek tramwajowy Pl. Szembeka 03,
dojazd do Centrum zajmuje ok 17 min.


"Informacje zawarte w niniejszej ofercie nie są prawnie wiążące i nie stanowią oferty handlowej, w tym w rozumieniu art.. 66 par 1 Kodeksu Cywilnego".

Więcej informacji udzielę telefonicznie.
Nieprawidłowy adres E-mail