3pok. | dobry rozkład | dwustronne | Park |

Mieszkanie na sprzedaż
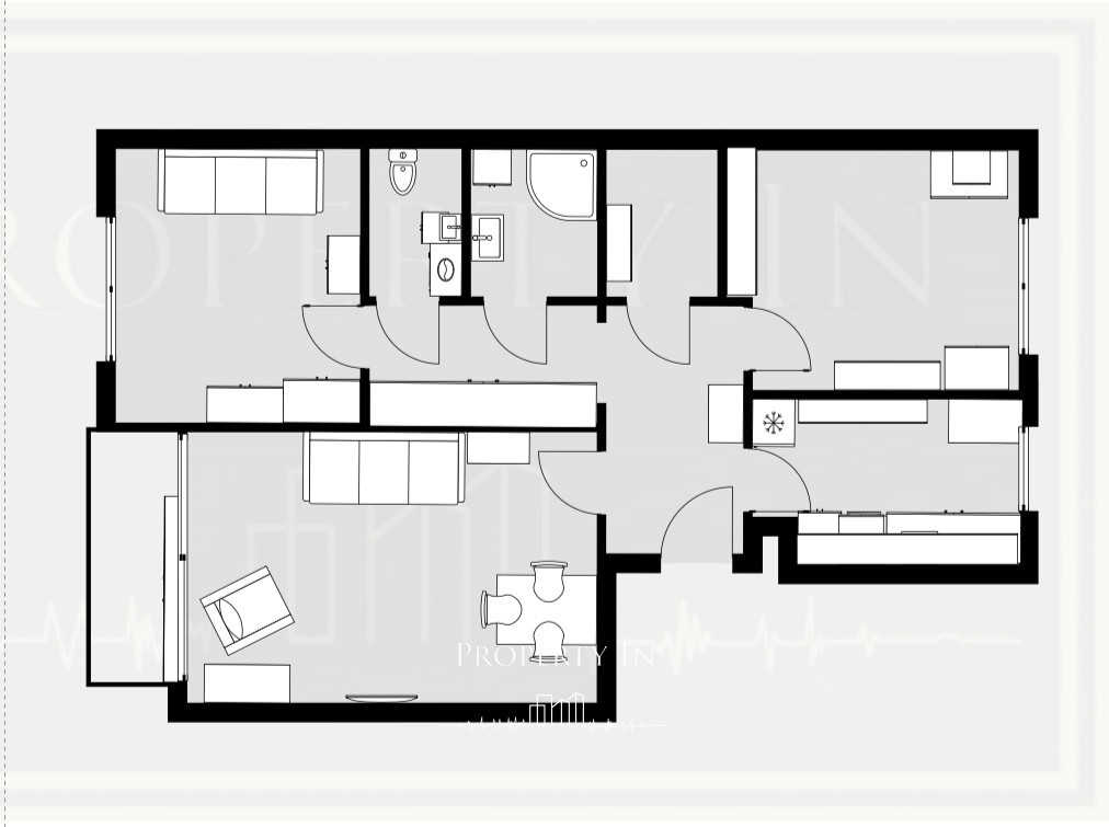
990 000,00 PLN , Pow. 65,30 m2
Typ nieruchomości:
Mieszkanie
Powierzchnia:
65,30 m2
Typ transakcji:
sprzedaż
Liczba pokoi:
3
Lokalizacja:
Warszawa Ochota , Władysława Korotyńskiego
Rok budowy:
1978
Piętro:
3 na 9
Numer oferty:
PI648453
Cena za m2:
15 160,80 PLN

Przed prezentacja koniecznie zapoznaj się z wirtualnym spacerem po mieszkaniu.



Warszawa, Ochota, ul. Władysława Korotyńskiego 19

metraż: 65,30 mkw

piętro: 3 z 9

spółdzielczo własnościowe prawo do lokalu z KW, możliwość posiłkowania się kredytem!

cena: 990 000 zł

czynsz administracyjny: 960 zł



Informacje o budynku
Dziewięciopiętrowy wybudowany w 1978 r. blok położony tuż obok Parku Szczęśliwckiego. Blok jak i klatki schodowe zadbane, utrzymywane w czystości. Nad bezpieczeństwem mieszkańców czuwa monitoring przed jak i w budynku.

Nieruchomość składa się z:
- przedpokoju
- kuchni 
- pom.gospodarczego
- salonu z wyjściem na balkon
- sypialni 1 
- sypialni 2
- łazienki
- wc


Do mieszkania przynależy piwnica.


Najważniejsze informacje dotyczące nieruchomości:
- bardzo dobry rozkład
- na podłodze parkiet dębowy
- pomieszczenie gospodarcze
- szafa wnękowa w przedpokoju 
- dwustronne co daje dużo światła w mieszkaniu
- trzy mieszkania na piętrze 
- ekspozycja północ-południe
- duży balkon




Opis okolicy i komunikacji miejskiej
Bezpieczna i spokojna okolica. W pobliżu pełna infrastruktura miejska: sklepy, przedszkola, żłobki, restaurację, piekarnia, przychodnie, apteki, kluby fitness, place zabaw, banki, galerie handlowe.
Lokalizacja pod względem komunikacji miejskiej bardzo dobra, ok. 100m od bloku znajduję się przystanek autobusowy oraz tramwajowy. Bezpośredni dojazd do centrum samochodem zajmuję 15min. 



Więcej informacji udzielę telefonicznie.

Informacje zawarte w niniejszej ofercie nie są prawnie wiążące i nie stanowią oferty handlowej, w tym w rozumieniu art.. 66 par 1 kodeksu cywilnego.

Nieprawidłowy adres E-mail