Idealna nieruchomość na biuro lub mieszkanie

Mieszkanie na sprzedaż
1 175 000,00 PLN , Pow. 67,13 m2
Typ nieruchomości:
Mieszkanie
Powierzchnia:
67,13 m2
Typ transakcji:
sprzedaż
Liczba pokoi:
2
Lokalizacja:
Warszawa Ochota Stara Ochota , Kopińska
Rok budowy:
1936
Piętro:
0 na 4
Numer oferty:
PI340057
Cena za m2:
17 503,35 PLN
2 pok.| kamienica 1936 r. | zielona okolica | Stara Ochota

Duże, dwupokojowe mieszkanie w przedwojennej kamienicy na Starej Ochocie.

Zapraszam do zapoznania się ze spacerem wirtualnym.

Informacje o budynku:
- kamienica z 1936 roku pod nadzorem konserwatora
- dwa wejścia do budynku, od strony ulicy Kopińskiej oraz Grzymały -Sokołowskiego
- przeprowadzony remont klatek schodowych w 2018 roku z zachowaniem przedwojennego charakteru
- odświeżona elewacja w 2020 roku
- możliwość parkowania na zamkniętej posesji (wjazd przez bramę otwierana na pilota), tylko dla mieszkańców bloku
- mała wspólnota - tylko 18 mieszkań
- miejsce na stojaki rowerowe na terenie posesji

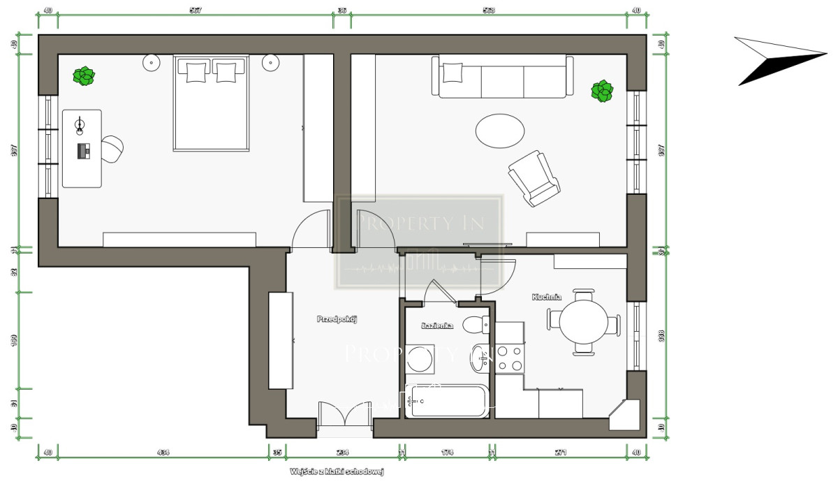
Nieruchomość składa się z:
- przestronnego przedpokoju - 8 mkw
- pokoju (strona północna) - 21,5 mkw
- pokoju (strona południowa) - 22,5 mkw
- łazienki - 3,8 mkw
- kuchni (ekspozycja północna) - 9,6 mkw

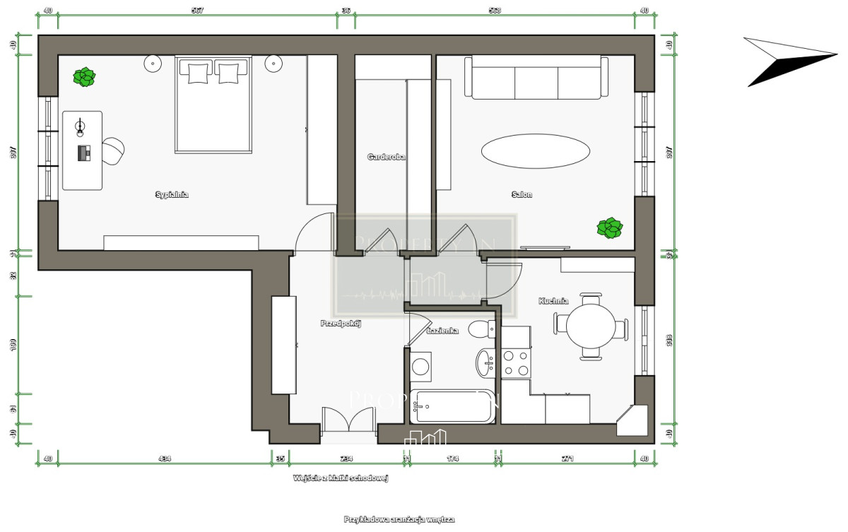
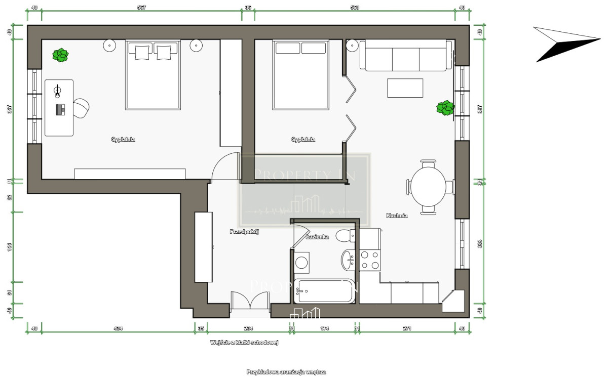
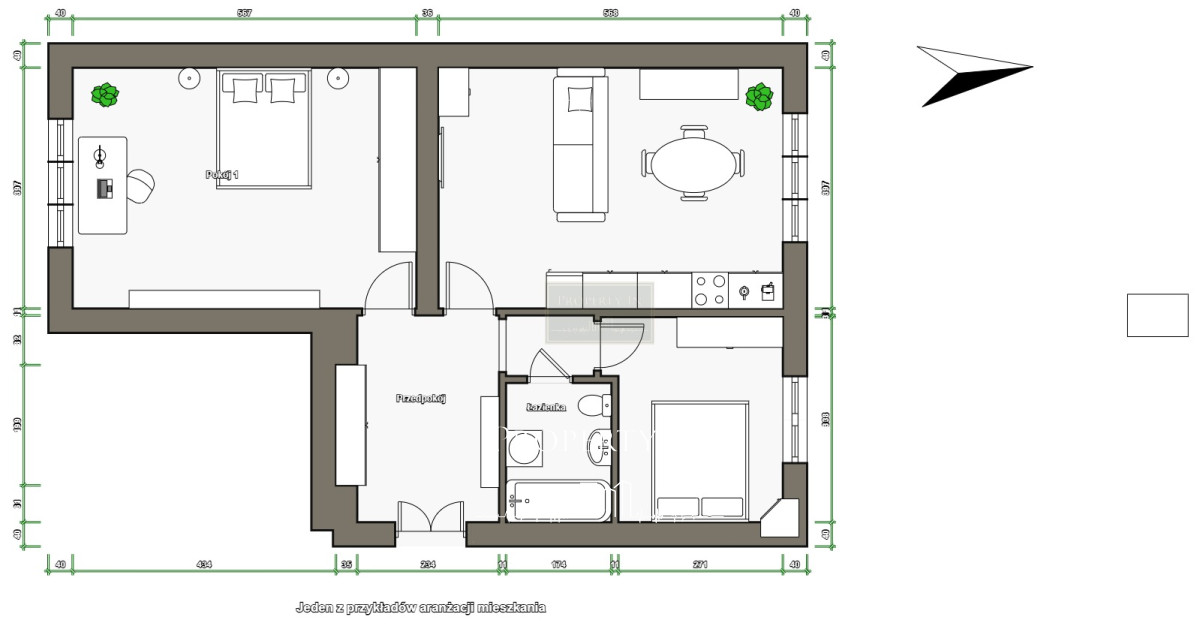
Najważniejsze informacje dotyczące nieruchomości:
- piękny rozkład pomieszczeń, idealny na prowadzenie biura lub gabinetu
- przestronne, wysokie mieszkanie - ok. 308 cm
- w pokojach oraz przedpokoju znajduje się drewniana klepka wymagająca jedynie wycyklinowania
- duże okna dobrze doświetlające mieszkanie
- nieruchomość przeznaczona do generalnego remontu, można mieszkanie przystosować do własnych potrzeb
- możliwość parkowania na zamkniętym podwórku

Opis okolicy i komunikacji miejskiej
Nieruchomość znajduje się w doskonałym punkcie na Starej Ochocie pomiędzy ulicą Kopińską a Grzymały - Sokołowskiego. W pobliżu znajdują się przystanki autobusowe skąd można bardzo szybko dojechać m.in. do Centrum, Metra Politechnika, Dworzec Zachodni. 
W bliskiej odległości znajduje się Hala Kopińska, sklepy spożywcze, piekarnie, szpital.
Bliskość głównych arterii komunikacyjnych zapewnia wygodne połączenie z pozostałymi dzielnicami miasta.

To idealna nieruchomość dla osób ceniących sobie klimat przedwojennych kamienic, szukających idealnej przestrzenia na biuro, inwestycję lub do codziennego mieszkania.

Oferta przedstawia rzeczywiste zdjęcia mieszkania oraz wizualizacje. 

Więcej informacji udzielę telefonicznie.
Zapraszam do kontaktu oraz na prezentację.

Informacje zawarte w niniejszej ofercie nie są prawnie wiążące i nie stanowią oferty handlowej, w tym w rozumieniu art.. 66 par 1 kodeksu cywilnego.

 
Nieprawidłowy adres E-mail