Niski czynsz | Widne | Duże Patio

Mieszkanie na sprzedaż
599 000,00 PLN , Pow. 33,48 m2
Drukuj ofertę
Drukuj ofertę
Typ nieruchomości:
Mieszkanie
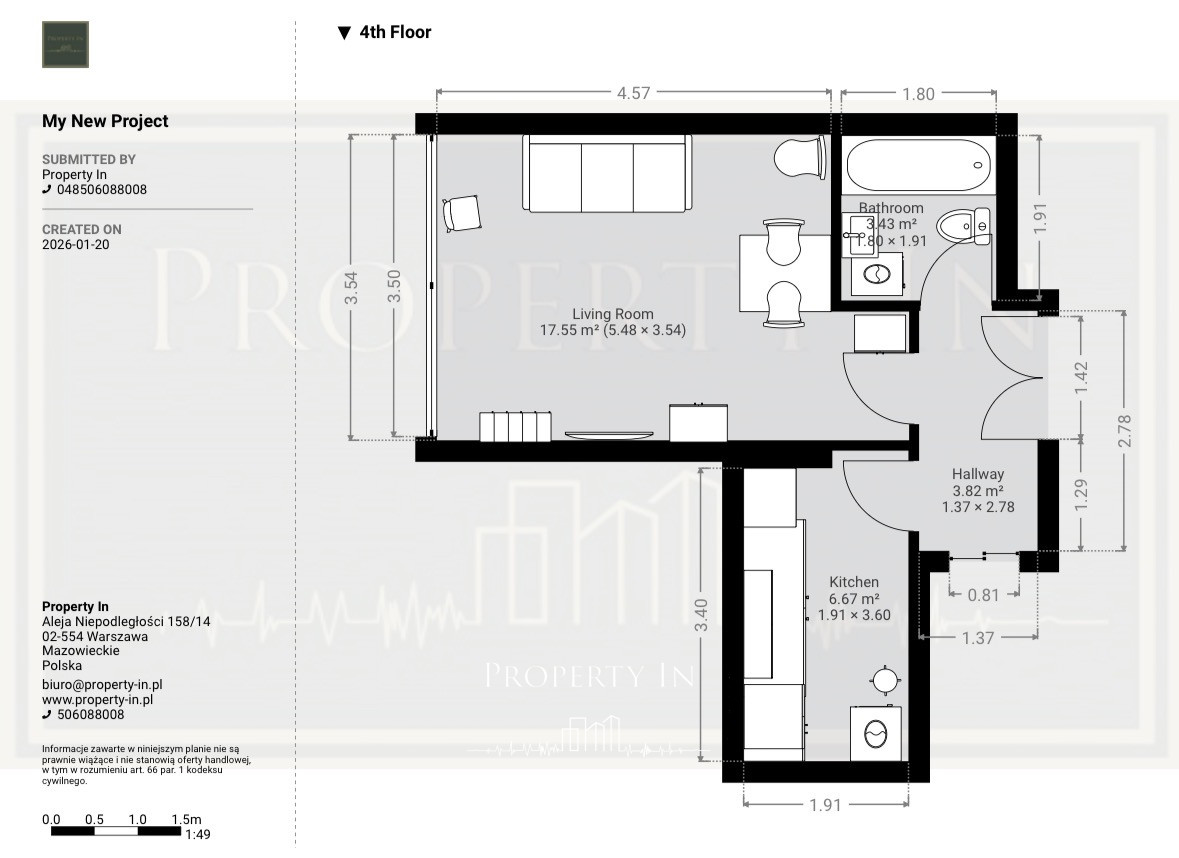
Powierzchnia:
33,48 m2
Typ transakcji:
sprzedaż
Liczba pokoi:
1
Lokalizacja:
Warszawa Mokotów , Iwicka
Rok budowy:
1960
Piętro:
4 na 4
Numer oferty:
PI872006
Cena za m2:
17 891,28 PLN

Przestronna i bardzo jasna kawalerka w jednej z najlepszych lokalizacji Mokotowa, z dostępem do zadbanego patio z zielenią i strefą relaksu, zapewniającego atmosferę prywatnego ogrodu w centrum Warszawy.



  • Jednopokojowe mieszkanie

  • Warszawa, Mokotów, ul. Iwicka

  • metraż: 33,48 mkw

  • piętro: 4 z 4

  • pełna własność, możliwość posiłkowania się kredytem!
    czynsz administracyjny: 368 zł

  • cena: 599 000 zł




Informacje o budynku:
Budynek położony przy ul. Iwickiej to kameralna kamienica z lat 60., wybudowana z cegły. Nieruchomość jest zadbana i dobrze utrzymana, z czystymi i estetycznymi klatkami schodowymi. Teren budynku jest zamknięty, co zapewnia mieszkańcom poczucie prywatności i bezpieczeństwa.
Do dyspozycji mieszkańców dostępne jest duże, wewnętrzne patio.
Przestrzeń została zaaranżowana jako strefa wypoczynku - znajdują się tu m.in. hamaki oraz plac zabaw, co czyni to miejsce przyjaznym zarówno do relaksu, jak i codziennego spędzania czasu. Patio stanowi zieloną, spokojną enklawę, oddzieloną od miejskiego zgiełku.



Nieruchomość składa się z:
- przedpokoju
- pokoju
- kuchni
- łazienki z wc

Do mieszkania przynależy piwnica. 



Najważniejsze informacje dotyczące nieruchomości:
- bardzo dobrze doświetlone
- ekspozycja zachodnia
- w pobliżu Łazienki Królewskie
- bardzo dobra lokalizacja
- parking na terenie osiedla 
- zielone patio ze strefą wypoczynku i placem zabaw
- niski czynsz administracyjny
- dębowy parkiet

Opis okolicy:
Nieruchomość położona jest na Mokotowie, w rejonie ul. Iwickiej, w otoczeniu zieleni i niskiej zabudowy. W bezpośredniej okolicy znajdują się jedne z najbardziej cenionych terenów rekreacyjnych w Warszawie, w tym Łazienki Królewskie, Park Morskie Oko oraz Park Promenada, idealne do spacerów, biegania i codziennego wypoczynku.
Pod budynkiem oraz w najbliższym sąsiedztwie dostępna jest pełna infrastruktura handlowo-usługowa: Netto, Carrefour, Żabka, piekarnie, apteki oraz punkty usługowe. W okolicy znajdują się również liczne restauracje i lokale gastronomiczne, w tym kuchnia polska, europejska, włoska i tajska, a także pizzerie i lokale typu kebab.

Opis komunikacji miejskiej:
Bardzo dobra komunikacja z pozostałymi częściami miasta. W bliskiej odległości znajdują się przystanki autobusowe i tramwajowe przy ul. Gagarina oraz Chełmskiej, zapewniające szybki dojazd do centrum Warszawy oraz innych dzielnic.


Więcej informacji udzielę telefonicznie.

Informacje zawarte w niniejszej ofercie nie są prawnie wiążące i nie stanowią oferty handlowej, w tym w rozumieniu art.. 66 par 1 kodeksu cywilnego.

Nieprawidłowy adres E-mail