| 2-pokoje | balkon | po remoncie |

Mieszkanie na sprzedaż
749 000,00 PLN , Pow. 50,80 m2
Typ nieruchomości:
Mieszkanie
Powierzchnia:
50,80 m2
Typ transakcji:
sprzedaż
Liczba pokoi:
2
Lokalizacja:
Warszawa Bemowo , Lazurowa
Rok budowy:
1974
Piętro:
8 na 12
Numer oferty:
PI297600
Cena za m2:
14 744,09 PLN
| 2-pokoje | miejsce postojowe | balkon | po remoncie |


adres: ul. Lazurowa

metraż: 50,80 m2

piętro: 8/12

spółdzielczo-własnościowe prawo do lokalu z założoną KW, można posiłkować się kredytem!!

cena: 749 000 zł

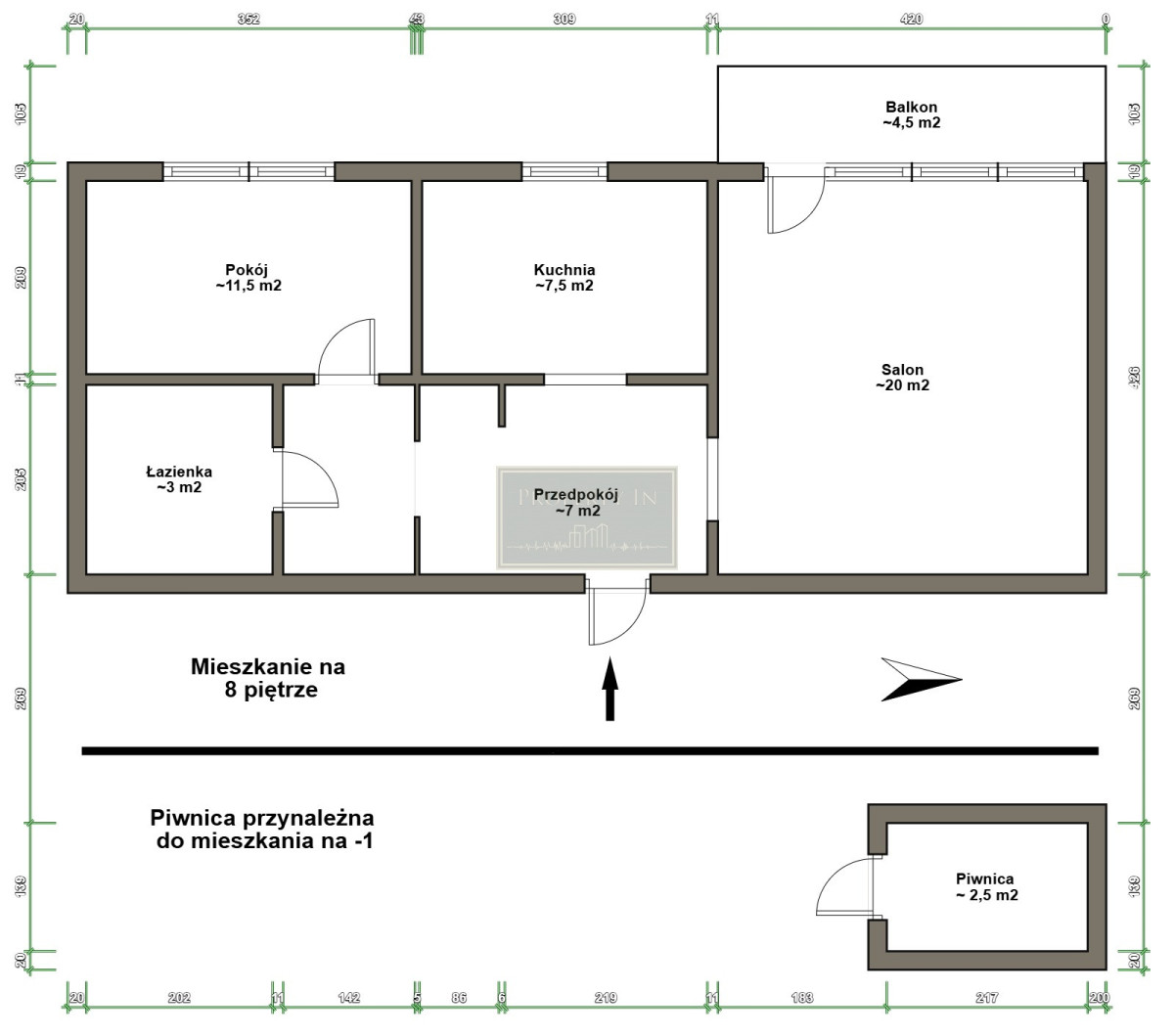
piwnica: jest przynależna do mieszkania ~ 2,5 m2

czynsz administracyjny: ok. 900 zł


Informację o budynku:
Mieszkanie znajduję się na 8 piętrze w budynku z 1974 roku. Czyste, spokojne oraz zadbane osiedle. W budynku są również 2 nowe windy.  Mieszkanie po generalnym remoncie z klimatyzacją, gotowe do wprowadzenia !! 
Kuchnia do własnej aranżacji, zdjęcia w ogłoszeniu są jedynie poglądową wizualizacją. Ogromnym atutem są dwa oddzielne pokoje. Mieszkanie posiada również balkon ~ 4,5 m2 nie wchodzący w skład mieszkania.

Do mieszkania przypisane jest strzeżone miejsce postojowe  -
dodatkowo płatne ok. 70 zł/msc. 

Nieruchomość składa się z:
- przedpokoju ~ 7 m2
- salonu  ~ 21 m2
- kuchni ~ 7,5 m2
- łazienki ~ 3 m2
- pokoju ~ 11.5 m2
- balkonu ~ 4,5 m2

Najważniejsze informację dotyczące mieszkania:
- cicha, zielona i spokojna okolica
- po generalnym remoncie
- dobrze doświetlone
- na ścianach gładź gipsowa
- nowe okna PCV
- balkon
- klimatyzacja
- duża możliwość aranżacji (wydzielenie 3 pokoi)

Opis okolicy:
Bezpieczna, zielona i spokojna okolica. W pobliżu pełna infrastruktura miejska: sklepy, przedszkola, żłobki, restaurację, piekarnia, przychodnie, apteki, kluby fitness, place zabaw, banki, galerie handlowe.


Opis komunikacji miejskiej:
Lokalizacja doskonale skomunikowana ze wszystkimi dzielnicami Warszawy.
150m od budynku znajduję się:
przystanek autobusowy Sternicza 01
Autobus: 105, 112, 177, 220, N42, N45
niebawem powstanie również stacja Metro Lazurowa. (oddanie w 2026)


"Informacje zawarte w niniejszej ofercie nie są prawnie wiążące i nie stanowią oferty handlowej, w tym w rozumieniu art.. 66 par 1 Kodeksu Cywilnego".

Więcej informacji udzielę telefonicznie.
780-734-388
Nieprawidłowy adres E-mail