Dom | poddasze | stan deweloperski | działka |

Dom (Wolnostojący) na sprzedaż
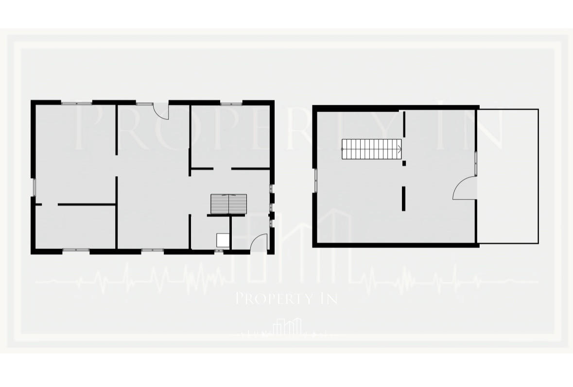
1 390 000,00 PLN , Pow. 124 m2
Drukuj ofertę
Drukuj ofertę
Typ nieruchomości:
Dom
Powierzchnia:
124 m2
Typ transakcji:
sprzedaż
Liczba pokoi:
5
Lokalizacja:
Warszawa Włochy , Katalogowa
Liczba pięter:
1
Numer oferty:
PI201197
Powierzchnia działki:
620 m2
Cena za m2:
11 209,68 PLN
Dom w stanie deweloperskim z działką.


Warszawa, Włochy, ul. Katalogowa 15

metraż: 124 mkw

pow.działki: 620 mkw

pełna własność gruntu z KW, można posiłkować się kredytem.


cena: 1 390 000 zł


Na sprzedaż dom w stanie deweloperskim, położony na w pełni uzbrojonej działce posiadającej wszystkie media: prąd, gaz, wodociąg oraz kanalizację miejską. Budynek pochodzi ze starszego budownictwa, jednak został gruntownie wyremontowany z dbałością o nowoczesne standardy.

Zakres prac obejmował m.in.:


  • nowe poszycie dachu, ocieplone pianką poliuretanową,

  • docieplenie ścian zewnętrznych 20 cm styropianu,

  • wymianę stolarki okiennej na nowe okna trzyszybowe,

  • wykonanie nowej instalacji elektrycznej,

  • wykonanie instalacji wodno-kanalizacyjnej z możliwością dowolnej aranżacji pomieszczeń przez przyszłego właściciela.



Na parterze rozprowadzono ogrzewanie podłogowe. W części dobudowanej parteru przygotowano przyłącza, które umożliwiają urządzenie łazienki — według własnego projektu. W salonie również pozostawiono możliwość wykonania aneksu kuchennego.

Na poddaszu znajdują się wyprowadzenia pod dodatkową łazienkę. Powierzchnia użytkowa tej kondygnacji została powiększona dzięki likwidacji schowków pod zastrzałami, co znacząco poprawiło funkcjonalność i przestrzeń.

Dom pozostaje w stanie deweloperskim, aby nowy właściciel mógł dostosować go do własnego gustu. Elementy takie jak drzwi wejściowe, schody, barierki czy wykończenie tarasu zostały celowo pozostawione do indywidualnej aranżacji.
Nieruchomość stanowi idealną propozycję dla osób, które szukają solidnie przygotowanego budynku z możliwością nadania mu własnego charakteru.




Więcej informacji udzielę telefonicznie.

Informacje zawarte w niniejszej ofercie nie są prawnie wiążące i nie stanowią oferty handlowej, w tym w rozumieniu art.. 66 par 1 kodeksu cywilnego.
Nieprawidłowy adres E-mail