| 3 oddzielne pok | loggia | świetna lokalizacja |

Mieszkanie na sprzedaż
840 000,00 PLN , Pow. 69,60 m2
Typ nieruchomości:
Mieszkanie
Powierzchnia:
69,60 m2
Typ transakcji:
sprzedaż
Liczba pokoi:
3
Lokalizacja:
Warszawa Praga-Południe , Ostrobramska
Rok budowy:
1978
Piętro:
7 na 10
Numer oferty:
PI604197
Cena za m2:
12 068,97 PLN
| 3 oddzielne pokoje | loggia | świetna lokalizacja |


adres: ul. Ostrobramska

metraż: 69.6 m2

piętro: 7/10

spółdzielczo-własnościowe prawo, można posiłkować się kredytem!!

cena: 840 000 zł

czynsz administracyjny: ok 1200 zł z zaliczkami na media (obecna kwota przy 3 osobach)


Informację o budynku:
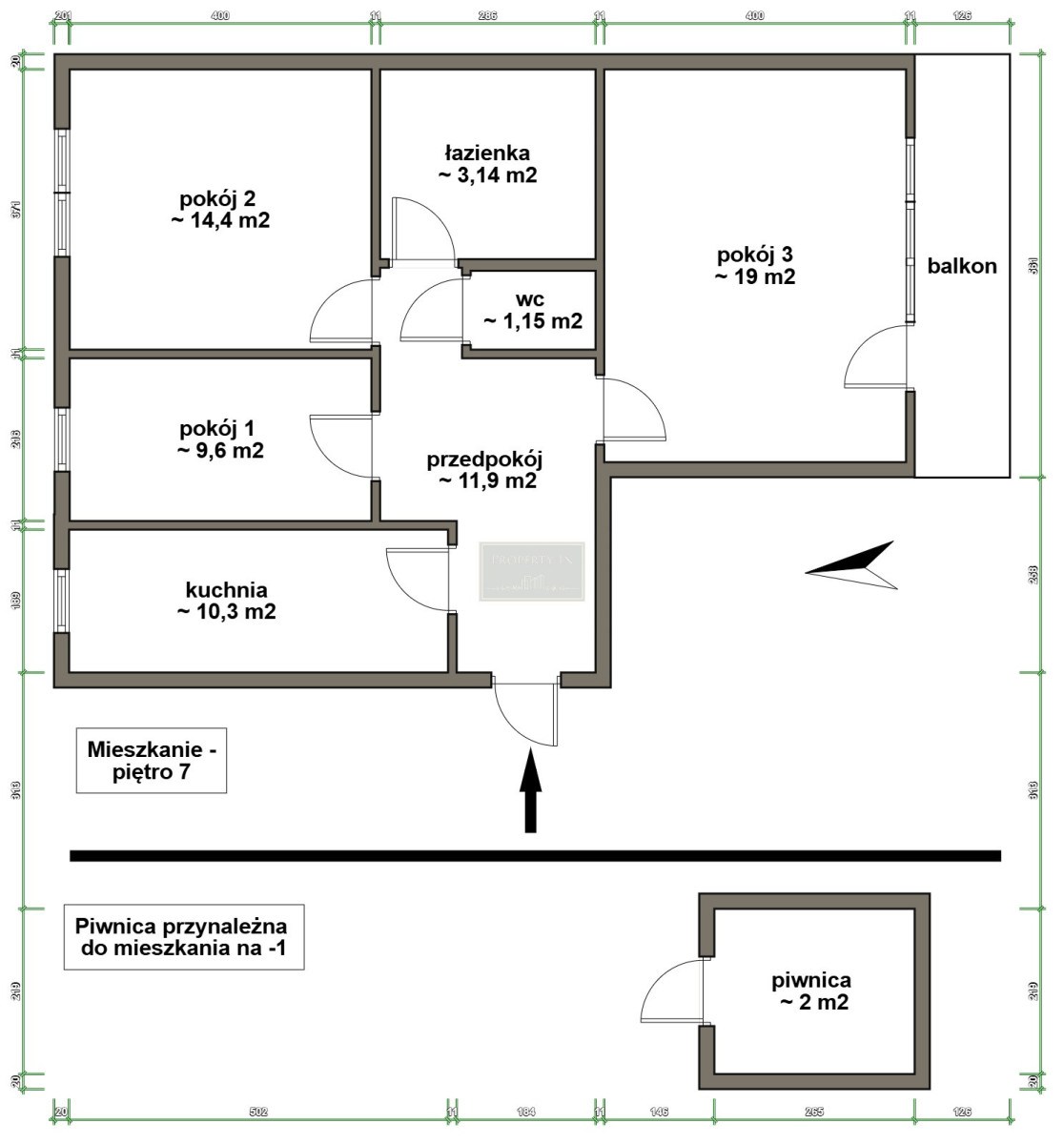
Mieszkanie znajduje się na 7 piętrze w budynku z 1978 roku. Jest ciche, dobrze doświetlone i posiada idealny rozkład pomieszczeń - oddzielną kuchnię oraz trzy niezależne pokoje.
Dodatkowym atutem jest loggia, która nie wlicza się do metrażu mieszkania.
Budynek jest czysty i zadbany, a klatki schodowe oraz winda utrzymane są w bardzo dobrym stanie. Mieszkańcy mają dostęp do parkingu za szlabanem.


Nieruchomość składa się z:
- przedpokoju ~ 11.9 m2
- kuchni ~ 10.3 m2
- łazienki ~ 3.14 m2 
- wc ~ 1.15 m2
- pokoju 1 ~ 9.6 m2
- pokoju 2 ~ 14.4 m2
- pokoju 3  ~ 19 m2

Dodatkowe pomieszczenia: 
- loggia 
- piwnica

Najważniejsze informację dotyczące mieszkania:
- dobrze doświetlone - ekspozycja 2 stronna płd/płn.
- 3 oddzielne pokoje
- okna PCV
- miejsca parkingowe dla mieszkańców za szlabanem
- cicha zielona i spokojna okolicy.

Opis okolicy:
W pobliżu pełna infrastruktura miejska: sklepy, przedszkola, żłobki, restaurację, piekarnia, przychodnie, apteki, kluby fitness, place zabaw, banki, galerie handlowe.

centrum handlowe Promenada - 350 m
sklep spożywczy Topaz - 70 m
paczkomat inPost - 60 m


Opis komunikacji miejskiej:
Lokalizacja doskonale skomunikowana ze wszystkimi dzielnicami Warszawy.
250 m od budynku znajduję się:
przystanek autobusowy CH Promenada 01
dojazd do Centrum bezpośrednim autobusem 525 zajmuje 25 min.


"Informacje zawarte w niniejszej ofercie nie są prawnie wiążące i nie stanowią oferty handlowej, w tym w rozumieniu art.. 66 par 1 Kodeksu Cywilnego".

Więcej informacji udzielę telefonicznie.
780-734-388
Nieprawidłowy adres E-mail