5 pokoi, gotowiec inwestycyjny. Praga Południe

Mieszkanie na sprzedaż
875 000,00 PLN , Pow. 62,70 m2
Drukuj ofertę
Drukuj ofertę
Typ nieruchomości:
Mieszkanie
Powierzchnia:
62,70 m2
Typ transakcji:
sprzedaż
Liczba pokoi:
5
Lokalizacja:
Warszawa Praga-Południe Grochów , Międzyborska
Rok budowy:
1992
Piętro:
8 na 12
Numer oferty:
PI650327
Cena za m2:
13 955,34 PLN
Pięciopokojowe mieszkanie na sprzedaż - Praga Południe (inwestycja pod wynajem na pokoje)

Prezentujemy ofertę sprzedaży przestronnego mieszkania zlokalizowanego na warszawskiej Pradze Południe. To doskonała propozycja inwestycyjna, idealna pod wynajem na pokoje. Nieruchomość znajduje się w dobrze skomunikowanej okolicy, co zapewnia szybki dostęp do centrum miasta oraz innych kluczowych punktów Warszawy.

Szczegóły mieszkania:
Powierzchnia: 62,70 m²
Liczba pokoi: 5
Piętro: 8/10 w budynku z lat 90-tych
Typ własności: Pełna własność z księgą wieczystą

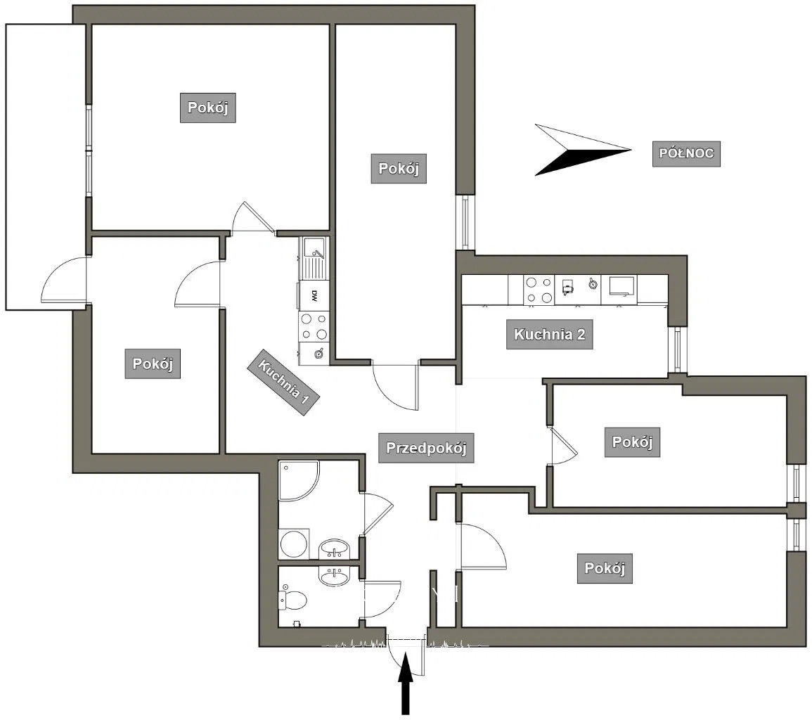
Rozkład mieszkania:
Mieszkanie składa się z pięciu oddzielnych pokoi, co umożliwia wygodne wydzielenie przestrzeni do wynajmu na pokoje. Do dyspozycji mieszkańców są również dwa aneksy kuchenne, łazienka, WC oraz balkon.

Pokoje: W każdym pokoju znajduje się wystarczająco dużo miejsca do umeblowania w formie łóżka, biurka oraz szafy.
Kuchnia: Dwa aneksy kuchenne dla najemców. W pełni wyposażone, z płytami indukcyjnymi, zmywarkami, zlewami i lodówkami.
Łazienka: Wyposażona w prysznic oraz umywalkę. W osobnym pomieszczeniu znajduje się WC.

Dodatkowe informacje:
Stan mieszkania: Mieszkanie wymaga odświeżenia i poprawek. Można oczywiście zmienić rozkład i przywrócić lokal pod potrzeby prywatne (jako mieszkanie 3 - pokojowe).

Ogrzewanie: Centralne miejskie.
Balkon: Z pokoju dziennego wyjście na balkon, który stanowi dodatkową przestrzeń do odpoczynku.

Lokalizacja:
Mieszkanie znajduje się w atrakcyjnej lokalizacji na Pradze Południe, w pobliżu licznych punktów handlowych, usługowych oraz terenów zielonych. Dobra infrastruktura komunikacyjna - blisko przystanki tramwajowe i autobusowe oraz stacja metra, co zapewnia szybki dostęp do centrum miasta i innych dzielnic.

Idealna inwestycja:
Mieszkanie doskonale sprawdzi się jako inwestycja pod wynajem na pokoje. Bliskość uczelni wyższych, biur, komunikacji miejskiej oraz rozwijająca się okolica, czynią z tego mieszkania świetną okazję do długoterminowego wynajmu.

Zapraszamy do kontaktu i umówienia się na prezentację!


"Informacje zawarte w niniejszej ofercie nie są prawnie wiążące i nie stanowią oferty handlowej, w tym w rozumieniu art.. 66 par 1 Kodeksu Cywilnego".
Nieprawidłowy adres E-mail