| 3 oddzielne pokoje | 54 m2 | świetna lokalizacja

Mieszkanie na sprzedaż
825 000,00 PLN , Pow. 54 m2
Typ nieruchomości:
Mieszkanie
Powierzchnia:
54 m2
Typ transakcji:
sprzedaż
Liczba pokoi:
3
Lokalizacja:
Warszawa Mokotów , Bernardyńska
Rok budowy:
1977
Piętro:
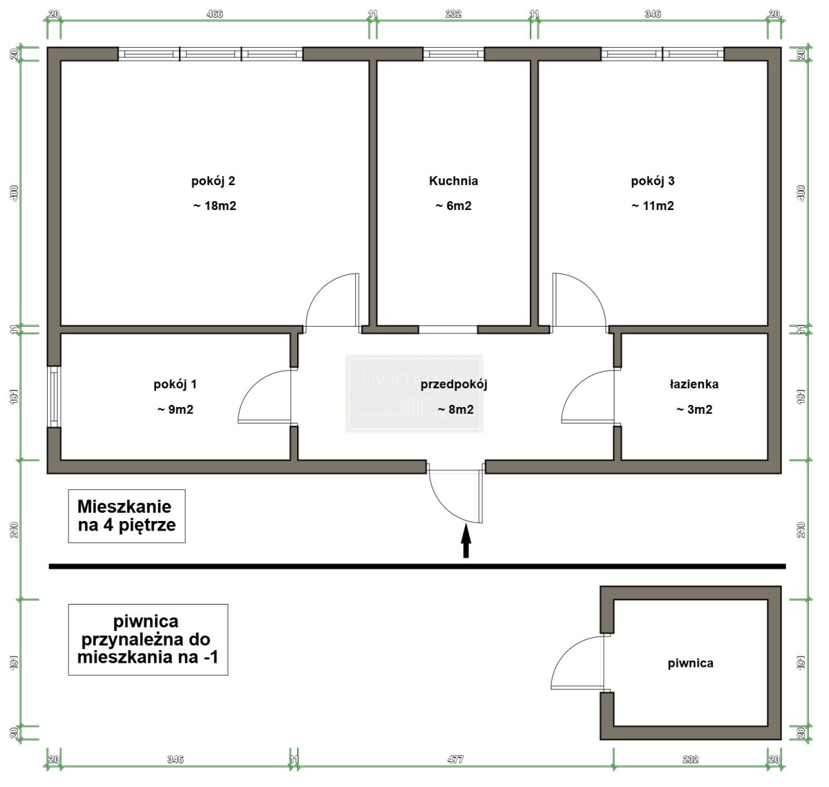
4 na 12
Numer oferty:
PI796728
Cena za m2:
15 277,78 PLN
| 3 oddzielne pokoje | 54 m2 | świetna lokalizacja |


adres: ul. Bernardyńska 

metraż: 54m2

piętro: 4/12

pełna własność, można posiłkować się kredytem!!

cena: 825 000 zł

czynsz administracyjny: ok 1000 zł


Informację o budynku:
Mieszkanie znajduje się na 4 piętrze w budynku z 1977 roku. Jest ciche, dobrze doświetlone i posiada idealny rozkład pomieszczeń - oddzielną kuchnię z oknem oraz 3 niezależne pokoje.
Budynek jest czysty i zadbany, a klatki schodowe oraz windy utrzymane są w bardzo dobrym stanie. Mieszkańcy mają dostęp do parkingu  przy budynku.

Mieszkanie według Księgi Wieczystej ma 54 m², jednak w rzeczywistości jest większe (~57 m2)    - metraż pokoju 2 - powiększa zabudowany balkon, stanowiący integralną część pokoju.

Nieruchomość składa się z:
- przedpokoju ~ 8 m2
- kuchni ~ 6 m2
- łazienki ~ 3 m2
- pokoju 1 ~ 9 m2
- pokoju 2 ~ 18 m2
- pokoju 3 ~ 11 m2

Najważniejsze informację dotyczące mieszkania:
- dobrze doświetlone 
- wysokość pomieszczeń 2,57 m
- 3 oddzielne pokoje
- kuchnia oddzielna z oknem
- okna PCV
- dodatkowe pomieszczenia - piwnica ~ 3 m2
- cicha zielona i spokojna okolicy.
- 2 windy w budynku 

Opis okolicy:
W pobliżu pełna infrastruktura miejska: sklepy, przedszkola, żłobki, restaurację, piekarnia, przychodnie, apteki, kluby fitness, place zabaw, banki, galerie handlowe.

Jezioro Czerniakowskie - 5 min spacerem 


Opis komunikacji miejskiej:
Lokalizacja doskonale skomunikowana ze wszystkimi dzielnicami Warszawy.
spacerem 2 min od budynku znajduję się:
przystanek autobusowy Os. Bernardyńska 02
do Centrum można dojechać bezpośrednim autobusem nr 131 


"Informacje zawarte w niniejszej ofercie nie są prawnie wiążące i nie stanowią oferty handlowej, w tym w rozumieniu art.. 66 par 1 Kodeksu Cywilnego".

Więcej informacji udzielę telefonicznie.
780-734-388
Nieprawidłowy adres E-mail